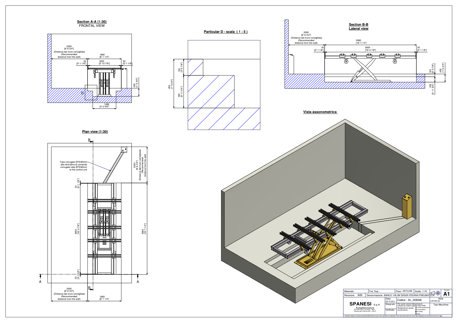
106 5 Meter Pit Diagram
106 5 Meter Pit Diagram
Related Articles
106 5 Meter Pit CAD File Download
106 5 Meter Pit CAD File Download Link
106 EXT 6 Meter Pit CAD File Download
106 EXT Pit CAD File Download Link
106 EXT 6 Meter Pit Diagram
MULTIBENCH EXT Options Diagram - 90MINOSAB3
Minibench - Smart, Fast, Powerful. - Complete Tutorial